Vai al contenuto
Residenza Lupa
Appartamenti in vendita a pochi minuti dal centro di Bellinzona
Menu
PROGETTO
APPARTAMENTI
POSTI AUTO E CANTINE
BLOCCO A
RL 01
RL 02
RL 03/ RL 04 (VENDUTI)
BLOCCO B
RL 05
RL 06
BLOCCO C
RL 07
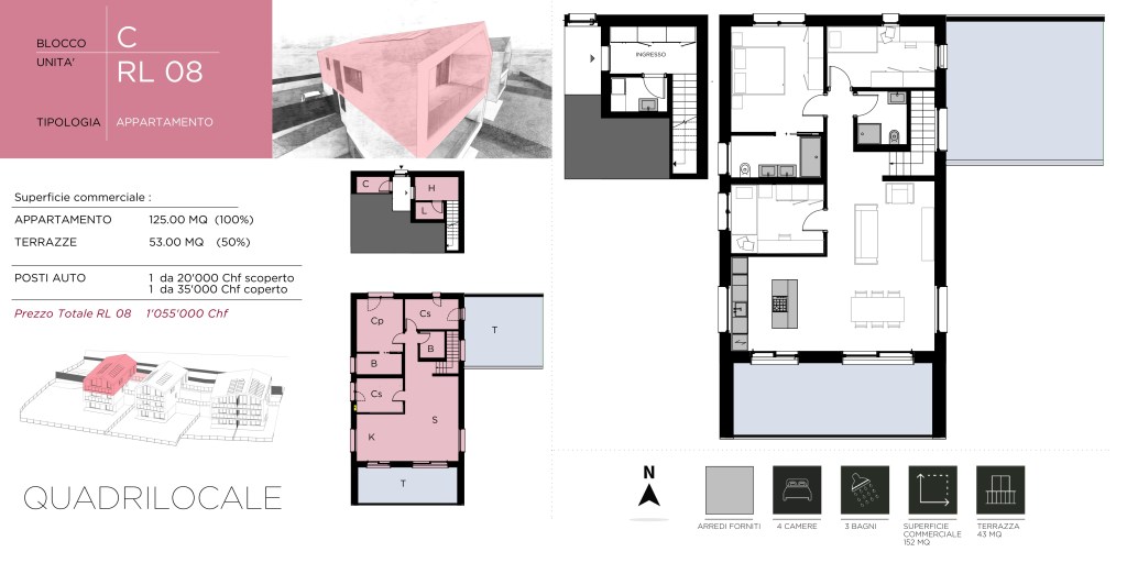
RL 08
MINERGIE
SCELTA DEI MATERIALI
CANTIERE
INFORMAZIONI
RL 08
Abbonati
Abbonato
Residenza Lupa
Registrami
Hai già un account WordPress.com?
Accedi ora.
Residenza Lupa
Abbonati
Abbonato
Registrati
Accedi
Copia shortlink
Segnala questo contenuto
Visualizza articolo nel Reader
Gestisci gli abbonamenti
Riduci la barra
Caricamento commenti...
Scrivi un Commento...
E-mail (Obbligatorio)
Nome (Obbligatorio)
Sito web
search
previous
next
tag
category
expand
menu
location
phone
mail
time
cart
zoom
edit
close